Villas del este: Planos
Tipos de apartamentos
Planos de Villas del Este
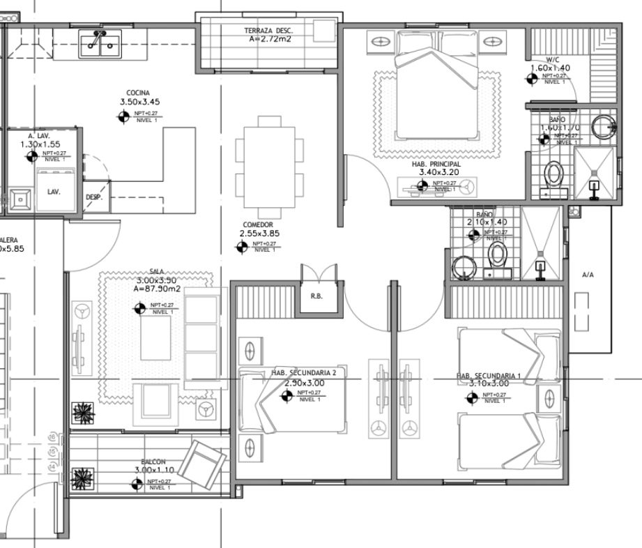
Planos de distribución de los apartamentos y planos de planta de los edificios. Cada apartamento se entregará con aires acondicionados en cada una de las 3 habitaciones sin costo adicional.
Distribución de los apartamentos
Edificios de 4 niveles
- 3 habitaciones
- Sala
- Comedor
- Cocina
- 2 baños
- Habitación ppal c/baño y w/c
- 1 parqueo por apartamento

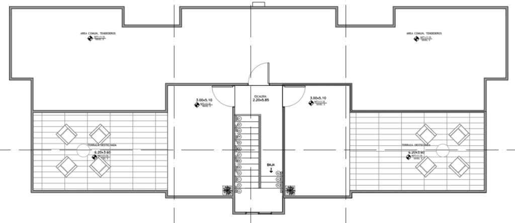
Plano del nivel terraza
4to. nivel con terraza
- Terraza privada de 40.52 m2 para los apartamentos del 4to. nivel

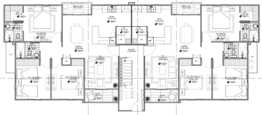
Plano 1er. nivel
Terraza frontal y espacio para patio en el primer nivel

